Котел КВр-0,25ДВО древесные отходы в Анадыре

Водогрейный, отопительный, твердотопливный, древесные отходы, колосники, 0.25 МВт (250 кВт), 70...95 °C, 0,6 МПа (кгс/cм²).

Цена:
250 000 руб.
Количество:
Отправляя свои личные данные через формы на сайте, Вы даёте своё согласие на обработку персональных данных согласно Федеральному закону №152-ФЗ «О персональных данных» от 27.07.2006 г. в редакции от 01.07.2017.

Описание котла

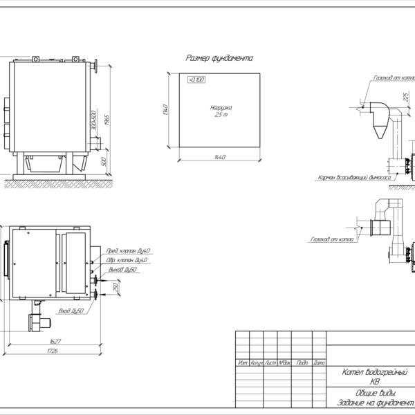
Водогрейный котел КВр-0,25 – это агрегат, использующийся для отопления и горячего водоснабжения жилых, административных и производственных зданий. В котле мощностью 250 кВт (0,25 МВт) в качестве топлива используются древесные отходы: кора, щепа, опил, пеллеты. Максимальная температура нагрева жидкости в котлах на древесных отходах достигает 115 °С. Устанавливается в котельную 250 кВт и котельную 500 кВт.

Конструкция котла КВр состоит из сварной трубной системы, так называемого блока котла и колосниковой топки. Окрашенный металлический корпус защищает котел от коррозии и механических повреждений. Чтобы сократить теплопотери, газоплотные и негазоплотные части котельного блока обшиты теплоизоляционным материалом: плитами ПТЭ и войлоком.

Агрегат компактен, безопасен и прост в эксплуатации. Для установки котла КВр-0,25 с габаритными размерами по длине, ширине и высоте: 1,75х1,4х2,15 м требуется подготовленное место. Отапливаемая площадь достигает – 2500 м². Твердотопливный котел с ручной системой топливоподачи и шлакоудаления легко обслуживается одним оператором – кочегаром: расход древесных отходов небольшой – 67 кг/ч. Для удобства загрузки топлива котел с колосниками оснащен шнековой подачей и ворошителем. Не имеет высоких требований к качеству нагреваемой жидкости и работает без водоподготовки.

При должном соблюдении правил использования, а это своевременная очистка топки от шлака, можно забыть о поломках и снижении производительности отопительного котла КВр, что дает срок службы не менее 10 лет.

Более подробную информацию Вы можете получить у наших специалистов. Чтобы купить отопительный водогрейный котел КВр-0,25 на коре, щепе, опиле, пеллетах и других древесных отходах с колосниками мощностью 250 кВт (0,25 МВт), достаточно позвонить нам либо оставить заявку и мы обязательно с Вами свяжемся.

Характеристики
Тип: КВр
Вид топлива: Твердотопливный
Топливо: Древесные отходы
Мощность: 0.22 Гкал
Мощность: 250 кВт
Мощность: 0.25 МВт
КПД, не менее: 80 %
Вид топки: Ручной
Топка: Колосники
Класс котла: 1
Отапливаемая площадь: 2500 м²
Отапливаемый объём: 6750 м³
Тяга: Принудительная
Температура воды на выходе, не менее: 70...95 °С
Аэродинамическое сопротивление: 210 Па (мм. вод. ст.)
Расход теплоносителя среды: 9 м³/ч
Расход условного топлива: 38 кг/ч
Расход топлива: 67 кг/ч
Массовый расход уходящих газов: 0.21 кг/с
Низшая теплота сгорания топлива: 4000 кКал/кг
Давление рабочей среды: 0,6 МПа (кгс/cм²)
Гидравлическое сопротивление при перепаде t: 0,08 МПа (кгс/cм²)
Температура воды на входе в котёл, не менее: 60 °C
Температура уходящих газов: 170…250 °C
Радиационная поверхность нагрева: 8.6 м²
Конвективная поверхность нагрева: 15.4 м²
Номинальное разрежение в топке при работе: 20…60 Па
Габаритные размеры (ДxШxВ): 1750х1400х2150 м
Масса котла (без воды): 1800 кг
Расчетный срок службы, не менее: 10 лет
Тип котла: Водогрейный
Серия: КВр

Города поставок

Москва
Пн-Пт 09:00 - 18:00
Сб 09:00 - 17:00
Карачаево-Черкесская Республика
Пн-Пт 09:00 - 18:00
Сб 09:00 - 17:00
Екатеринбург
Пн-Пт 09:00 - 18:00
Сб 09:00 - 17:00

Совершите покупку за 4 шага

Шаг 1
Выберите товары из каталога
Шаг 2
Поместите нужные вам товары в корзины
Шаг 3
Укажите свои контактные данные в форме обратной связи
Шаг 5
Ожидайте звонка от менеджера для оформления покупки

Похожие товары

КВм
Котлы КВм
Цена от 0 руб.
Отопительные котлы
Водогрейный котел КВм-7.0 на ДВО используется для нагрева жидкости до 115 °С, применяемой в системах отопления и горячего водоснабжения. Отопительные приборы КВм-7.0 способны прогревать помещения площадью до 70000 м². Твердотопливный котел оснащается механической топкой на древесных отходах со шнековой подачей. Дополнительно к агрегату приобретаются сопутствующие товары: вентиляторы, дымососы, циклоны, дымовые трубы, бункер топки и другое котельное оборудование.
Отопительные котлы
Водогрейный котел КВм-6.3 на ДВО используется для нагрева жидкости до 115 °С, применяемой в системах отопления и горячего водоснабжения. Отопительные приборы КВм-6.3 способны прогревать помещения площадью до 63000 м². Твердотопливный котел оснащается механической топкой на древесных отходах со шнековой подачей. Дополнительно к агрегату приобретаются сопутствующие товары: вентиляторы, дымососы, циклоны, дымовые трубы, бункер топки и другое котельное оборудование.
Вы смотрели эти товары
Отопительные котлы
Водогрейный, отопительный, твердотопливный, древесные отходы, колосники, 0.25 МВт (250 кВт), 70...95 °C, 0,6 МПа (кгс/cм²).
Котельные установки
Дробилки
Дробилка серии ВДГ-10 представляет собой промышленное дробильное устройство, которое предназначено для грохочения и дробления каменных углей. Оборудование способно измельчать фракции твердого топлива, а также осуществлять его подачу на транспортер. Серийные дробилки применяются на разных производствах, где имеется твердотопливный котел.